Barrierearmer Bungalow mit großem Garten, Keller & 2 Garagen – ruhige Lage in Edling
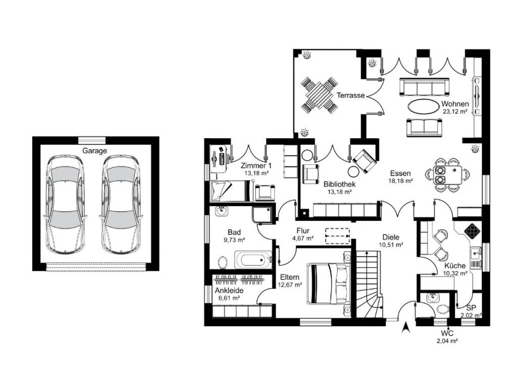
Dieser gepflegte Bungalow bietet komfortables und weitgehend barrierearmes Wohnen auf einer Ebene – mit rund 132 m² Wohnfläche und einem großzügigen, voll ausgebauten Keller. Ideal für Familien, Senioren oder Menschen mit eingeschränkter Mobilität, die ein ruhiges, durchdachtes Zuhause suchen.
Herzstück des Hauses ist der offen gestaltete Wohn- und Essbereich mit Zugang zur überdachten Terrasse. Direkt daran angeschlossen befindet sich ein weiteres, derzeit offen integriertes Zimmer, das aktuell als Spielbereich genutzt wird. Durch das Einziehen einer Wand lässt sich hier mit wenig Aufwand ein eigenständiges drittes Schlafzimmer oder ein separates Arbeitszimmer realisieren – ein echtes Plus an Flexibilität.
Die Küche mit Vorratsraum ist separat gehalten, bietet aber durch einen Durchgang ebenfalls Anschluss an den Wohnbereich. Zwei bestehende Schlafzimmer, eines davon mit begehbarer Ankleide, bieten bereits großzügige Rückzugsmöglichkeiten. Das Tageslichtbad mit Dusche, Badewanne und Waschmaschinenanschluss sowie ein zusätzliches Gäste-WC runden das Raumangebot ab.
Über den Wohnräumen befindet sich ein Kaltspeicher mit zusätzlichem Stauraum. Der komplett unterkellerte Bungalow bietet vier große, teilweise geflieste Kellerräume, die sich ideal für Hobbys, Lagerung oder eine Werkstatt eignen.
Der gepflegte Garten ist nach Südwesten ausgerichtet – perfekt für entspannte Nachmittage im Grünen. Zwei Garagen mit elektrischen Toren sowie ein Außenstellplatz gehören ebenfalls zum Angebot. Die ruhige Lage in zweiter Reihe, abseits der Straße, sorgt für viel Privatsphäre und eine angenehme Wohnatmosphäre.
| Objekt ID: | 2429 |
| Kaufpreis: | 799.000,00 EUR |
| Provision für Käufer: | 3,57% |
| Provision für Verkäufer: | 3,57% |
| Lage: | Wohngebiet |
| Zimmer: | 3 |
| Wohnfläche: | 132,00m² |
| Grundstücksfläche: | 590,00m² |
| Baujahr: | 2006 |
| Anzahl Garagenstellplätze: | 2 |
| Energieausweis-Ausstellungsdatum: | 27.01.2023 |
| Energieausweis-Jahrgang: | ab Mai 2014 |
| Energieausweis-Gebäudeart: | Wohngebäude |
| Heizungsart: | Zentralheizung |
| Befeuerungsart: | Öl |
| Baujahr lt. Energieausweis: | 2006 |
| Energieeffizienzklasse: | D |
| Wert des Endenergieverbrauchs: | 112 kWh/(m²*a) |
| Art des Energieausweises: | Verbrauch |
| Gültigkeit des Energieausweises: | 27.01.2033 |
Die Immobilie befindet sich in einer ruhigen Wohnsiedlung in Edling, einer gewachsenen Gemeinde im oberbayerischen Landkreis Rosenheim – nur wenige Minuten von der charmanten Stadt Wasserburg am Inn entfernt. Die Lage in zweiter Reihe mit eigener Zufahrt bietet eine angenehme Rückzugsmöglichkeit vom Alltag.
Edling überzeugt mit einer sehr guten Infrastruktur: Einkaufsmöglichkeiten, Restaurants, Drogeriemarkt, Fitnessstudio, medizinische Versorgung sowie Kindergarten, Grund- und Mittelschule sind direkt im Ort vorhanden.
Vom Bahnhof Edling erreichen Sie bequem Wasserburg am Inn und München mit dem Zug. Der nahegelegene Bahnhof Reitmehring (Wasserburg Bf) bietet zudem direkte Verbindungen nach Rosenheim. Ein weiterer Ausbau der Anbindung an den Großraum München ist in den kommenden Jahrzehnten angedacht – ein Potenzial, das langfristig zur Standortqualität beiträgt.
Die Region rund um Edling gilt als landschaftlich reizvoll und gleichzeitig wertstabil – ein nachhaltiger Standort für Eigennutzer wie auch für Kapitalanleger.
– Wohnen auf einer Ebene: barrierearm und großzügig geschnitten
– Ca. 132 m² Wohnfläche plus 132 m² voll unterkellerte Nutzfläche
– 3,5 Zimmer – durch einfachen Wandeinzug realisierbar als 3 Schlafzimmer
– Offener Wohn-/Essbereich (ca. 58 m²) mit Zugang zur überdachten Terrasse
– Separate Küche mit Vorratsraum und Durchgang zum Wohnbereich
– Schlafzimmer mit begehbarer Ankleide
– Tageslichtbad mit Wanne, Dusche und Waschmaschinenanschluss
– Zusätzliches Gäste-WC mit Fenster
– Gepflegter Garten in Süd-West-Ausrichtung
– Optional: Übernahme eines angrenzenden Gemüsegartens möglich
– 2 Garagen mit elektrischen Toren, plus 1 Außenstellplatz
– Ruhige Lage in zweiter Reihe mit eigener Zufahrt
– Solide, energieoptimierte Holztafelbauweise (WeberHaus-Standard)
– Fenster: Holz, 2-fach verglast, teils bodentief, mit Rollläden
– Parkettböden in Wohn- und Schlafräumen, Fliesen in Bad, WC, Küche und Flur
– Deckenhöhe bis 2,60 m, helle Raumgestaltung
– Entkalkungsanlage + Wasserenthärter in der Küche
– Hochwertiges Wasseraufbereitungssystem (Umkehrosmoseanlage) für besonders reines Trinkwasser
– Gigabit-fähiger Kabelinternetanschluss (bis zu 1.000 Mbit/s laut Vodafone)
– Keller (ca. 132 m²): vier große, geflieste Räume, Kunststoff-Kellerfenster
– Kaltspeicher als zusätzlicher Stauraum
– Gute Bahnverbindungen nach München, Wasserburg und Rosenheim
– Wertstabile Lage im oberbayerischen Raum mit Entwicklungspotenzial
Energieausweis: Energieverbrauchsausweis, Verbrauchskennwert 112.00 kWh/m²a, primaerer Energieträger Öl, Baujahr Heizung 2006, Energieeffizienzklasse D, Ausstellungsdatum 27.01.23, gültig bis 27.01.33, Energiepass Jahrgang 2014
















































