Reihenmittelhaus mit Südgarten in ruhiger Wohnlage von Edling
Dieses Reihenmittelhaus in einer ruhiger Wohnlage in Edling und wurde 1995 in solider Ziegelbauweise errichtet. Das Haus wurde von den Eigentümern stets gepflegt und befindet sich in einem ordentlichen Zustand.
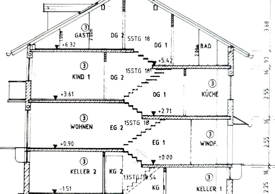
Die Wohnfläche von ca. 118 m² verteilt sich auf vier Zimmer. Die Split-Level-Bauweise verleiht dem Haus einen eigenständigen, charmanten Charakter und hebt es von klassischen Grundrisslösungen ab.
Vom Wohnzimmer aus besteht Zugang zur überdachten Terrasse sowie in den nach Süden ausgerichteten Garten. Ein Gartenhäuschen bietet zusätzlichen Stauraum im Außenbereich. In der Wohnküche ist ausreichend Platz für einen Essbereich vorhanden.
Im Obergeschoss befindet sich ein Südbalkon. Das Tageslichtbad ist mit Badewanne und Dusche ausgestattet. Ergänzend steht im Keller ein weiteres Bad mit Dusche zur Verfügung.
Der Keller verfügt zudem über einen beheizten Hobby- bzw. Partyraum. Für Fahrzeuge stehen ein geräumiges Doppelcarport sowie eine separate Garage zur Verfügung.
Energieverbrauchsausweis:
Energieträger: Öl, Stückholz
Baujahr Gebäude: 1994
Baujahr Wärmeerzeuger: 1994
Energiekennwert: B – 73, kWh/(m²a)
| Objekt ID: | 227635 |
| Kaufpreis: | 530.000,00 EUR |
| Provision für Käufer: | 3,57 % |
| Provision für Verkäufer: | 3,57 % |
| Zimmer: | 4 |
| Wohnfläche: | 118,00m² |
| Grundstücksfläche: | 206,00m² |
| Baujahr: | 1995 |
| Anzahl Carport-Stellplätze: | 2 |
| Anzahl Garagenstellplätze: | 1 |
| Energieausweis-Ausstellungsdatum: | 10.02.2026 |
| Energieausweis-Jahrgang: | ab Mai 2014 |
| Energieausweis-Gebäudeart: | Wohngebäude |
| Heizungsart: | Zentralheizung |
| Befeuerungsart: | Öl,Holz |
| Baujahr lt. Energieausweis: | 1995 |
| Energieeffizienzklasse: | B |
| Wert des Endenergieverbrauchs: | 73 kWh/(m²*a) |
| Art des Energieausweises: | Verbrauch |
| Gültigkeit des Energieausweises: | 10.02.2036 |
Edling ist eine Gemeinde in Oberbayern mit guter Anbindung und ausgeprägter Infrastruktur. Der Ort verfügt über einen eigenen Bahnhof mit Verbindungen in Richtung München und Wasserburg. Zudem ist Edling in den Münchner Verkehrsverbund (MVV) eingebunden. Perspektivisch sind Weiterentwicklungen der Bahnverbindung vorgesehen, die den Standort langfristig zusätzlich aufwerten können, ohne dass hierzu verbindliche Aussagen getroffen werden.
Als Teil der Metropolregion München zählt Edling zu einem gefragten Wohnstandort mit anhaltend hoher Nachfrage. Vor Ort befinden sich unter anderem eine Grundschule, Kindergärten, Ärzte, Supermärkte sowie gastronomische Angebote.
Die Nähe zur Bundesstraße B304 sorgt für eine gute Verkehrsanbindung in Richtung München. Zudem bietet die Umgebung vielfältige Freizeit- und Erholungsmöglichkeiten, darunter Badeseen sowie die typische oberbayerische Landschaft. Die Alpen sind ebenfalls gut erreichbar.
– Reihenmittelhaus in ruhiger Wohnlage
– Baujahr 1995
– Massive Ziegelbauweise
– Ca. 118 m² Wohnfläche
– Ca. 206 m² Grundstück
– 4 Zimmer
– Split-Level-Bauweise
– Wohnküche
– Kaminofen im Wohnzimmer (Einbau ca. 2016)
– Tageslichtbad mit Badewanne und Dusche
– Zusätzliches Duschbad im Keller
– Überdachte Terrasse
– Südlich ausgerichteter Garten mit Gartenhäuschen
– Südbalkon im Obergeschoss
– Ölzentralheizung
– Entkalkungsanlage
– Beheizter Hobby-/Partyraum im Keller
– Doppelcarport für zwei Fahrzeuge
– Separate Garage
– relativ geringer Energieverbrauch (B)






















































