Großzügiges Einfamilienhaus (einseitig angebaut) mit außergewöhnlich viel Platz
Dieses außergewöhnlich großzügige Einfamilienhaus bietet rund 230 m² Wohnfläche verteilt auf vier Ebenen – ideal für Familien, die viel Platz, klare Strukturen und flexible Nutzungsmöglichkeiten suchen.
Der aktuelle Grundriss ist optimal als klassisches, zusammenhängendes Einfamilienhaus nutzbar. Gleichzeitig ermöglicht ein zusätzlicher Seiteneingang, das Haus perspektivisch – etwa für Generationenwohnen oder erwachsene Kinder – relativ einfach in zwei Bereiche aufzuteilen.
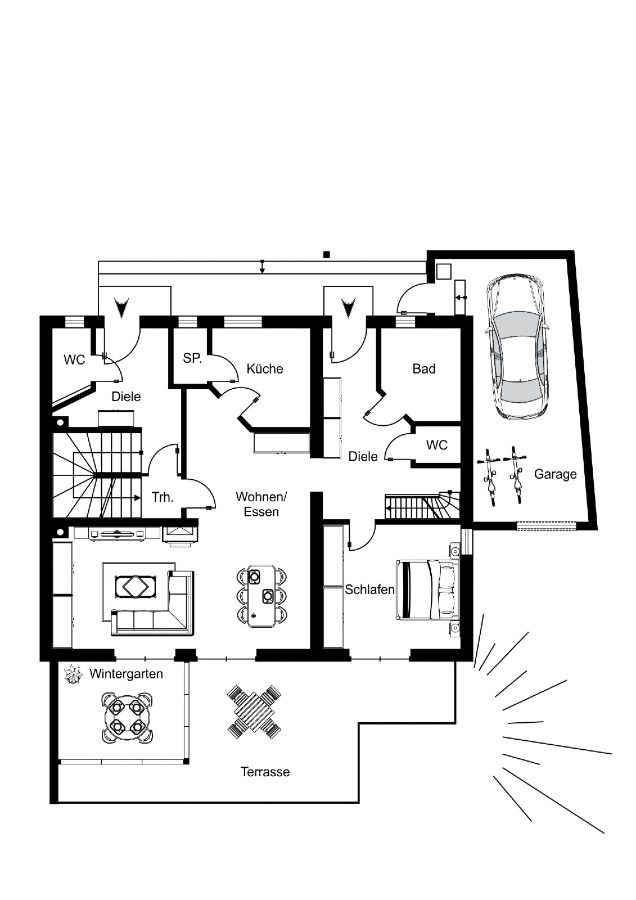
Im Erdgeschoss empfängt ein großzügiger Wohn- und Essbereich mit direktem Zugang zur Terrasse und in den Garten. Die Küche mit praktischer Speisekammer ist funktional angebunden und ideal für den Familienalltag. Ein besonderes Plus ist das Schlaf- oder Gästezimmer im Erdgeschoss – kombiniert mit dem benachbarten Bad eine perfekte Lösung für Gäste, Homeoffice oder altersgerechtes Wohnen. Ein Gäste-WC ergänzt diese Ebene.
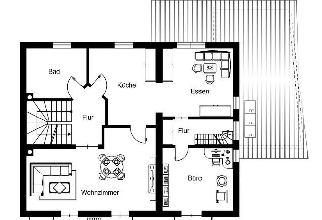
Im Obergeschoss stehen mehrere helle Zimmer bereit, die sich flexibel als Schlafzimmer, Kinderzimmer, Büro oder Hobbyräume nutzen lassen.
Ein großes Tageslichtbad sowie zwei Balkone sorgen für zusätzlichen Komfort und Rückzugsmöglichkeiten. Die Etage eignet sich hervorragend, um Wohnen und Arbeiten klar zu trennen oder Kindern einen eigenen Bereich zu geben.
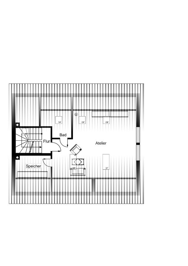
Das Dachgeschoss bietet ein beeindruckend großes Studiozimmer mit eigenem Duschbad. Ideal als Teenagerbereich, Atelier, Fitnessraum oder ruhiger Arbeitsbereich.
Der Keller ist sehr geräumig und kann sowohl für Hausarbeiten, als Stauraum sowie zur Ausübung von Hobbys genutzt werden.
Während das Haus heute als komfortables Einfamilienhaus genutzt wird, ermöglicht der vorhandene Seiteneingang und die vertikale Struktur, es später relativ einfach in zwei Wohneinheiten aufzuteilen – zum Beispiel:
Eltern im Erdgeschoss
Kinder/Familie im Ober- und Dachgeschoss
oder Wohnen & Arbeiten getrennt organisieren
Diese Möglichkeit schafft langfristige Sicherheit und passt sich unterschiedlichen Lebensphasen an.
Ein geräumiges, vielseitiges Einfamilienhaus mit ca. 230 m² Wohnfläche, das heute komfortables Wohnen ermöglicht und gleichzeitig zukunftsfähige Optionen bietet.
Eine seltene Kombination aus Platz, Struktur und Flexibilität – ideal für Familien, die ein Haus suchen, das mit ihren Bedürfnissen mitwächst.
Energieausweis: Energieverbrauchsausweis
Energiebedarfskennwert 117,1 kWh/(m²a)
Energieträger: Heizöl
Baujahr Anlagentechnik Heizung: 2000
Energieeffizienz-klasse D
| Objekt ID: | 2386-2 |
| Kaufpreis: | 748.000,00 EUR |
| Provision für Käufer: | 2,38 % |
| Provision für Verkäufer: | 2,38 % |
| Lage: | Wohngebiet |
| Dachform: | Satteldach |
| Bauweise: | massiv |
| Zimmer: | 6 |
| Badezimmer: | 3 |
| Wohnfläche: | 230,00m² |
| Grundstücksfläche: | 515,00m² |
| Grundfläche: | 60,00m² |
| Kellerfläche: | 60,00m² |
| Baujahr: | 2000 |
| Objektzustand: | gepflegt |
| Ausstattungskategorie: | Standard |
| Stellplätze: | 2 |
| Separate WCs: | 1 |
| Balkone: | 2 |
| Terrassen: | 1 |
| Bodenbelag: | Fliesen, Parkett, Laminat |
| Badausstattung: | Dusche, Badewanne, Fenster |
| Ausrichtung Balkon/Terrasse: | Süd |
| Energieausweis-Ausstellungsdatum: | 02.09.2024 |
| Energieausweis-Jahrgang: | ab Mai 2014 |
| Heizungsart: | Ofenheizung, Zentralheizung |
| Befeuerungsart: | Öl |
| Baujahr lt. Energieausweis: | 2000 |
| Energieeffizienzklasse: | D |
| Wert des Endenergieverbrauchs: | 117 kWh/(m²*a) |
| Art des Energieausweises: | Verbrauch |
| Gültigkeit des Energieausweises: | 02.09.2034 |
Diese interessante Immobilie befindet sich in einem ruhigen Wohngebiet von Albaching, einer idyllischen Gemeinde im Herzen von Oberbayern. Sie zeichnet sich durch ihre naturnahe Umgebung und die malerische oberbayerische Landschaft aus, die zu Wanderungen und Erholung einlädt. Albaching bietet einige Geschäfte des täglichen Bedarfs.
Die Gemeinde ist gut angebunden und bietet eine gute Erreichbarkeit des Münchener Flughafens. Die Kombination aus ruhigem Landleben und Nähe zu städtischen Annehmlichkeiten macht diese Lage besonders attraktiv. Hier genießen Sie die Ruhe einer ländlichen Umgebung und die Schönheit der Region, ohne auf die Vorzüge moderner Infrastruktur verzichten zu müssen. Albaching ist der ideale Standort für Menschen, die sowohl Entspannung als auch eine gute Infrastruktur schätzen.
einseitig angebautes Einfamilienhaus
Photovoltaikanlage
Solarthermie für Warmwasser
2 Kaminzüge (Vorbereitung für Schwedenofen)
großzügige Garage
ruhige Wohngegend
Flexibilität für die Zukunft
Photovoltaikanlage und Solarthermie für Warmwasser sorgt für nachhaltige Energiegewinnung und langfristige Einsparungen
ruhige und verkehrsberuhigte Lage
Südlage des Gartens
Gartenhäuschen
Einzelgarage mit elektrischem Rolltor
Starkstromanschluss in der Garage
Stellplatz
ein großer Keller sorgt für viel Stauraum
Hobbyraum im Keller mit Heizung
Balkon im Obergeschoss
großes Tageslichbad mit Badewanne und Bidet
großes und helles Zimmer im Dachgeschoss, nutzbar als Schlafzimmer oder Büro – auch hier kann bei Bedarf ein weiteres Zimmer abgeteilt werden
zusätzliches Duschbad im Dachgeschoss
Dachflächenfenster mit elektrischen Außenjalousien
überdachte Terrasse am Haus
separater Eingang sorgt für Privatsphäre, bessere Vermietungsmöglichkeiten und einer besseren Nutzbarkeit zu geschäftlichen Zwecken
Tageslichtbad mit Badewanne
separates WC
Energieausweis: Energieverbrauchsausweis
Energiebedarfskennwert 117,1 kWh/(m²a)
Energieträger: Heizöl
Baujahr Anlagentechnik Heizung: 2000
Energieeffizienz-klasse D


































