Außergewöhnliche Erdgeschosswohnung im historischen Schulhaus – barrierefrei mit Südterrasse
Diese besondere barrierefreie Erdgeschosswohnung befindet sich in einem charmanten ehemaligen Schulhaus aus dem Jahr 1912, das im Jahr 2012 umfassend und hochwertig saniert wurde. Der historische Charakter des Gebäudes wurde dabei bewusst erhalten und mit moderner Wohntechnik kombiniert. Insgesamt umfasst das Haus lediglich drei Wohneinheiten, was ein ruhiges, privates Wohnumfeld schafft.
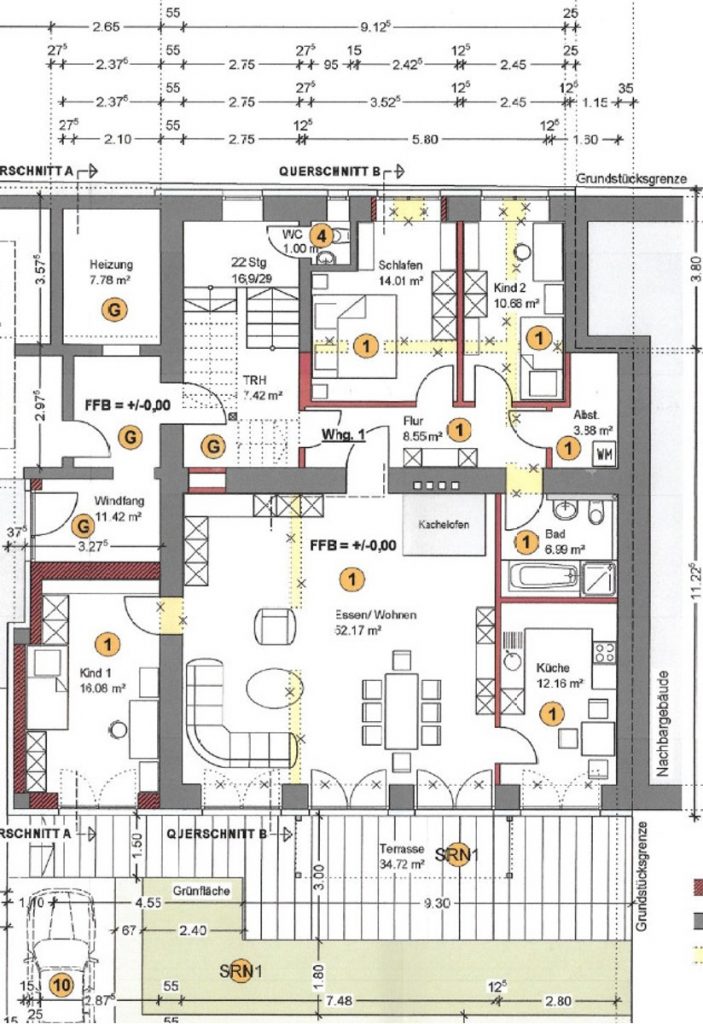
Herzstück der Wohnung ist das außergewöhnlich großzügige und repräsentative Wohnzimmer mit einer beeindruckenden Deckenhöhe von ca. 3,30 Metern. Der edle Eichenparkettboden unterstreicht das hochwertige Ambiente und verleiht dem Raum eine besondere Wohnqualität. Große Fensterflächen sorgen für viel Tageslicht und ein angenehmes Raumgefühl.
Die Wohnung verfügt über drei Schlafzimmer, die flexibel als Schlaf-, Arbeits- oder Gästezimmer genutzt werden können. Die geräumige Küche ist mit einer Einbauküche ausgestattet und bietet direkten Zugang zur Terrasse.
Das innenliegende Badezimmer ist hochwertig gestaltet und verfügt sowohl über eine begehbare Dusche als auch über eine Badewanne. Stimmungsvolle LED-Lichtakzente im Badezimmer und im Wohnbereich schaffen eine angenehme Atmosphäre.
Ein praktischer Abstellraum innerhalb der Wohnung sorgt für zusätzlichen Stauraum. Die sehr große, teilweise überdachte Terrasse ist von Küche, Wohnzimmer und einem Schlafzimmer aus zugänglich und führt in den kleinen, nach Süden ausgerichteten Garten, der zum Entspannen im Freien einlädt.
Die Wohnung präsentiert sich insgesamt in einem sehr gepflegten Zustand und überzeugt durch ihre hochwertige Ausstattung sowie die gelungene Verbindung aus historischem Flair und modernem Wohnkomfort.
| Objekt ID: | 227289 |
| Kaufpreis: | 550.000,00 EUR |
| Hauskosten: | 150,00 EUR |
| Provision für Käufer: | 3,57 % |
| Provision für Verkäufer: | 3,57 % |
| Lage: | Rettenbach |
| Zimmer: | 4 |
| Schlafzimmer: | 3 |
| Badezimmer: | 1 |
| Wohnfläche: | 130,00m² |
| Etage: | EG |
| Baujahr: | 1912 |
| Objektzustand: | saniert |
| Ausstattungskategorie: | gehoben |
| Anzahl Carport-Stellplätze: | 1 |
| Anzahl Außenstellplätze: | 1 |
| Balkon-/Terrassenfläche: | 34,72 m² |
| Terrassen: | 1 |
| Bodenbelag: | Fliesen, Parkett |
| Badausstattung: | Dusche, Badewanne |
| Ausrichtung Balkon/Terrasse: | Süd |
| Energieausweis-Ausstellungsdatum: | 03.03.2025 |
| Immobilie ist verfügbar ab: | 01.02.2026 |
| Heizungsart: | Zentralheizung |
| Befeuerungsart: | Pellet |
| Baujahr lt. Energieausweis: | 1912 |
| Energieeffizienzklasse: | A |
| Wert des Endenergieverbrauchs: | 34 kWh/(m²*a) |
| Art des Energieausweises: | Verbrauch |
| Gültigkeit des Energieausweises: | 02.03.2035 |
Die Immobilie befindet sich in Rettenbach, einem idyllischen Ortsteil der Gemeinde Pfaffing. Die Umgebung ist geprägt von einer ruhigen, ländlichen Struktur, weitläufigen Grünflächen und einer gewachsenen Dorfgemeinschaft – ideal für alle, die naturnah wohnen und dennoch gut angebunden sein möchten.
Die Region Oberbayern zählt zu den attraktivsten Wohngegenden Süddeutschlands. Sanfte Hügellandschaften, Wälder und Wiesen prägen das Bild und bieten zahlreiche Möglichkeiten zur Erholung, für Spaziergänge, Rad- und Freizeitaktivitäten. Auch ein Golfplatz befindet sich in der näheren Umgebung und ergänzt das vielseitige Freizeitangebot.
Trotz der ruhigen Lage sind wichtige Städte gut erreichbar: Wasserburg am Inn, Grafing, Ebersberg und Rosenheim sind mit dem Auto bequem erreichbar. Die Landeshauptstadt München liegt etwa eine Stunde entfernt und macht die Lage auch für Pendler attraktiv.
Diese Kombination aus ländlicher Ruhe, hoher Lebensqualität und guter Erreichbarkeit macht die Lage besonders reizvoll.
– Barrierefreie Erdgeschosswohnung
– Historisches Gebäude (Baujahr 1912), saniert 2012
– Nur 3 Wohneinheiten im Haus
– 3 Schlafzimmer
– Großzügiges Wohnzimmer mit ca. 3,30 m Deckenhöhe
– Hochwertiges Eichenparkett im Wohnbereich
– Geräumige Küche mit Einbauküche
– Innenliegendes Badezimmer mit
– begehbarer Dusche
– Badewanne
– Stimmungsvolle LED-Beleuchtung im Wohn- und Badezimmer
– Elektrische Raffstores an der Südseite
– Elektrische Rollläden an der Nordseite
– Fußbodenheizung
– Pelletheizung
– Energieeffizienzklasse A
– Sehr große, teilweise überdachte Terrasse
– Kleiner, nach Süden ausgerichteter Garten
– Abstellraum
– 1 Carport-Stellplatz + 1 freier Stellplatz
– Hochwertige und sehr gepflegte Ausstattung
– Erhalt des historischen Gebäudecharakters bei moderner Technik







































